Murature
Travi e pilastri in cemento armato gettato in opera.
Solai con travetti in c.a. e pignatte in laterizio.
Rivestimenti
Rivestimenti esterni, tamponature esterne in mattoni lavorati a mano 3,5 x 12 x 25
Rivestimenti cucina e bagni in monocottura
Pavimenti ingresso salone e cucina gres porcellanato 40 x 40
Pavimenti disimpegno e zona letto in parquet 60 x 300
Pareti a tinta lavabile
Impianto idrico sanitario
L'acqua calda sanitaria è prodotta dalla caldaia dell'impianto autonomo di riscaldamento
Piatto doccia in muratura con box in acciao e vetro temperato
Rubinetterie e soffioni doccia
Servizi sanitari a sopsensione
Idroscopino
Impianto di riscaldamento
Impianto autonomo di riscaldamento con caldaia a gas metano, per la produzione di acqua calda sanitaria, posti nell'armadio a muro esterno del balconcino della cucina.
Radiatori in alluminio e scaldasalviette trmo arredo di color bianco nei bagni
Impianto di climatizzazione
Impianto di climatizzazione a pompa di calore estiva/invernale con tre unità interne, l'unità centrale è nell'armadio a muro esterno del balconcino della cucina.
Le unità interne dispongono di un suo controller che pilota la velocità delle ventole e la temperatura.
Impianto elettrico
L'alimentazione dell'appartamento è dimensionata per potenza pari a 4,5 Kw a 230V. Distribuzione interna con cavi posati in tubazione flessibile in PVC autoestinguente, sottotraccia con scatole di derivazione.
Frutti elettrici della B-Ticino
Impianto antifurto con telecamere interne
Sistema di allarme formato da sensori volumetrici e sensori perimetrali di ultima generazione, sirene d'allarme, interne e esterne, tastiera di controllo, combinatore telefonico integrato GSM.
Attivazione/disattivazione dell'impianto antifurto a distanza da remoto
- Videocamere connesse alla rete telefonica per visionare l'interno dell'abitazione.
Impianti speciali
Impianto rilevatore gas di sicurezza con elettrovalvola per blocco gas della cucina.
Impianto per la ricezione Tv terrestre e satellitare nel salone, nelle camere e in cucina.
Impianto irrigazione per fioriere
Irrigazione automatica con tastiera di controllo di programmazione
Infissi
Avvogilbili di sicurezza in alluminio, motorizzati con telecomando.
Infissi esterni in legno Hemlock con doppio vetro, in vetro di ceramica (scorrevoli nel salone).
Zanzariere
Porte interne in legno bugnato
Portone d'ingresso blindato rivestito in legno, con serratura a cilindro europeo.
Box Auto:
Porta basculante motorizzata
Anno di costruzione: 2008

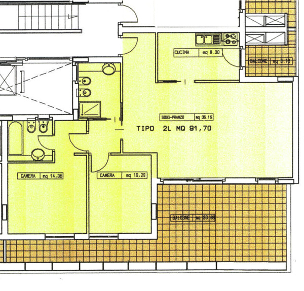
Cartina planimetrica dell'appartamento